PUUPILO RD
PUUPILO RD
PUUPILO RD
PUUPILO RD
PUUPILO RD
PUUPILO RD
PUUPILO RD
PUUPILO RD
PUUPILO RD
PUUPILO RD
PUUPILO RD
PUUPILO RD
PUUPILO RD
PUUPILO RD
PUUPILO RD
PUUPILO RD
SEE ALL PHOTOS
PUUPILO RD
PUUPILO RD
PUUPILO RD
PUUPILO RD
PUUPILO RD
PUUPILO RD
PUUPILO RD
PUUPILO RD
PUUPILO RD
PUUPILO RD
PUUPILO RD
PUUPILO RD
PUUPILO RD
PUUPILO RD
PUUPILO RD
PUUPILO RD
Sold

PUUPILO RD

PUUPILO RD, Kapaa, HI 96746

$395,000
Live in the cool and convenient Wailua Homesteads. Level lot ready for you to build TODAY! All the heavy lifting has been done for you. New septic system installed. New water meter installed. New waterline installed. New gravel driveway installed. Electric pole already there. $50,000+ savings just in utility infrastructure! It also saves you considerable time and hassle.

Drive to near the end of Puupilo Road, cross over an idyllic mountain stream, and on your left you will be greeted by a variety of unique palm trees as you drive down your 300' driveway to your future lot. Nice views of a neighboring grass meadow and stately palms.

One of the least expensive lots on the entire island of Kauai, so you know it's a terrific value.

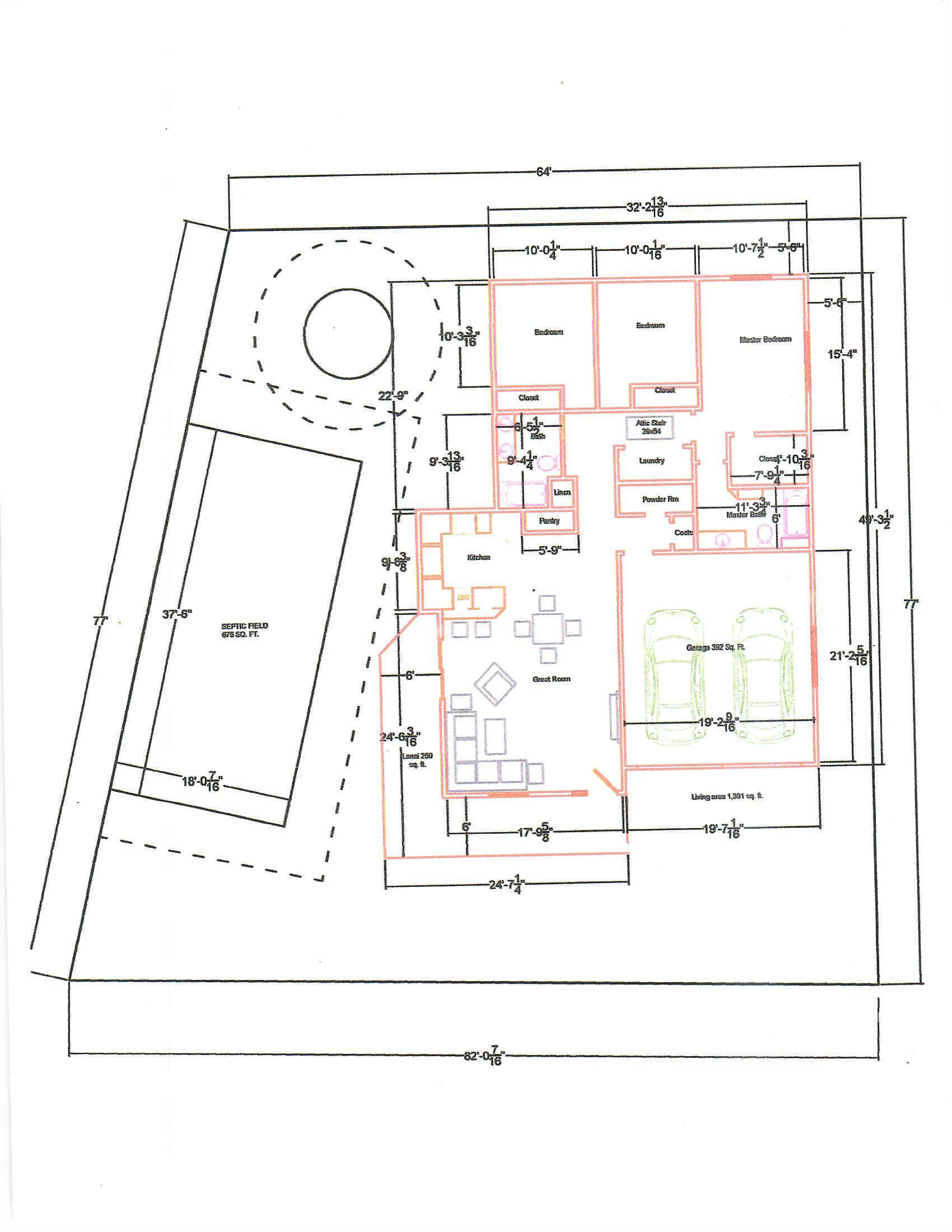
Owner has designed a 3 bedroom / 2.5 bathroom home with 1391 square feet of living area, plus lanais and a 2 car garage that fit nicely on the lot. (See picture of drawing). Or you can build your own plan. This is unit #2 of a 3 unit CPR. (See picture of CPR map).

Close to Kapaa Town, beaches, golf, and more. Short drive to Lihue, airport, hospital. Easy to see with an appointment, and please DO NOT drive onto the property without an appointment. Do not disturb current neighboring residents.

5,542 Sq.Ft. lot

Rohn Boyd

Rohn Boyd

Features & Amenities

Area & Lot

  • Status Sold
  • Lot Area5,542 Sq.Ft.
  • MLS® ID711559
  • TypeLand
  • View DescriptionMountain(s)

Exterior

  • water SourcePublic
  • utilitiesElectricity Available, Water Available
  • lot featuresCleared, Flag Lot, Interior Lot, Level
  • sewerSeptic Tank

Financial

  • Sales Price$395,000
  • Real Estate Tax $1,453/yr
  • Zoning R-2

Work With Rayna

Get assistance in determining the current property value, crafting a competitive offer, writing and negotiating a contract, and much more. Contact me today for more details.

Follow Me on Instagram